1
svar
221
visningar
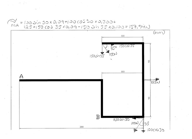
Kraft med momentberäkning
Hej
Jag ska beräkna kraften som bildas runt punkten A. Vet inte det korrekta svaret men känner att något inte stämmer. Framförallt är jag osäker på hur kraften 125N kommer in i formeln.

Tänk på att varje kraft ska multipliceras med den sträckan från punkten A till kraften som är vinkelrät mot kraften, dvs. 150sin(35)*0,2 och inte 150sin(35)*0,09. Kraften 125 N kommer inte att ha något kraftmoment med avseende på punkten A då dess verkningslinje skär punkten A